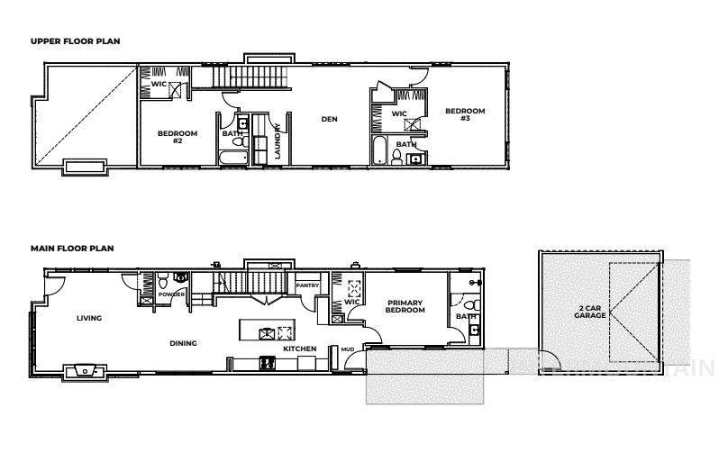
Description
Currently under construction and designed by Urban Design + Build, this modern contemporary home is located on Boise’s sought-after Depot Bench. The elevation is defined by a refined mix of stone and stucco, asymmetrical forms, and clean geometric lines, creating strong architectural presence and modern curb appeal. The thoughtfully designed floor plan includes three private primary suites, a dedicated den, and 3.5 bathrooms, offering exceptional flexibility for guests, multi-generational living, or work-from-home needs. Modern construction, efficient systems, and elevated finishes come together to deliver comfort, functionality, and style. Enjoy a truly central location with quick access to everything Boise has to offer—just 1.5 miles to Boise State University, 1.7 miles to the airport, 2 miles to downtown, and 2 miles to I-84. A fantastic opportunity to own a brand-new, design-forward home by a respected local builder in one of Boise’s most connected neighborhoods.
Directions: Vista Ave > W Nez Perce > S Hervey
-
3BEDS
-
0.07ACRES
-
4BATHS
-
01/2 BATHS
-
2,111SQFT
-
$358$/SQFT
School Information
Courtesy of Better Homes & Gardens 43North at 208-381-8000.Description
Currently under construction and designed by Urban Design + Build, this modern contemporary home is located on Boise’s sought-after Depot Bench. The elevation is defined by a refined mix of stone and stucco, asymmetrical forms, and clean geometric lines, creating strong architectural presence and modern curb appeal. The thoughtfully designed floor plan includes three private primary suites, a dedicated den, and 3.5 bathrooms, offering exceptional flexibility for guests, multi-generational living, or work-from-home needs. Modern construction, efficient systems, and elevated finishes come together to deliver comfort, functionality, and style. Enjoy a truly central location with quick access to everything Boise has to offer—just 1.5 miles to Boise State University, 1.7 miles to the airport, 2 miles to downtown, and 2 miles to I-84. A fantastic opportunity to own a brand-new, design-forward home by a respected local builder in one of Boise’s most connected neighborhoods.
Directions: Vista Ave > W Nez Perce > S Hervey
© 2026 Intermountain Multiple Listing Service, Inc. (IMLS). Real estate listings held by brokerage firms other than Southey Real Estate | EXP Realty are marked with the IMLS IDX logo and information about them includes the name of the listing brokerage. Information provided by IMLS is deemed reliable but not guaranteed. IDX information is provided exclusively for consumers' personal, non-commercial use and it may not be used for any purpose other than to identify prospective properties consumers may be interested in purchasing. IMLS does not assume any liability for missing or inaccurate data. Data last updated 2026-02-14T22:10:35.403.